Paseo Tláhuac
Información del proyecto
El proyecto Paseo Tláhuac consiste en la construcción de un centro comercial de 11,215m2 de construcción en un terreno de 6,283m2, de tres niveles sobre el nivel de banqueta y un nivel de estacionamiento bajo el nivel de banqueta, sobre el predio conocido como: Carretera a Santa Catarina Eje 10 Sur No. 60 (Ante. Av. Santa Catarina No. 26) Ms. 39 Lot. 10, colonia Pueblo San Francisco Tlaltenco, San Francisco Tlaltenco, Alcaldía Tláhuac.
Empresa promovente:
Inmobiliaria y Constructora Patlali S.A de C.V

Ubicación
Carretera a Santa Catarina Eje 10 Sur No. 60 (Ant. Av. Santa Catarina No. 26) Mz. 38 Lt. 10 colonia Pueblo San Francisco Tlaltenco, San Francisco Tlaltenco, Alcaldía Tláhuac.

Zonificación
El predio donde se ubicará el centro comercial no está afectando al área delimitada como Área Natural Protegida, como se muestra en la imagen.
Fuente: Mapa de Áreas Naturales Protegidas, en Secretaría del Medio Ambiente de la Ciudad de México, https://sedema.cdmx.gob.mx/programas/programa/areas-naturales-protegidas
Consulta directamente aquí (Mapa de Áreas Naturales Protegidas de SEDEMA)

Uso de suelo
Uso de suelo: Habitacional Mixto
Cuenta catastral: 157_235_05
Fuente: Secretaría de Desarrollo Urbano y Vivienda (SEDUVI): http://201.144.81.106:8080/seduvi/
Enlace de Consulta aquí

Características del proyecto
Superficie del terreno: 6,291.94 m2
Superficie construida: 11,215.00 m2
Número de niveles: Tres niveles
Distribución por niveles:
Sótano: Estacionamiento (179 cajones)
Planta baja: Tienda departamental ancla
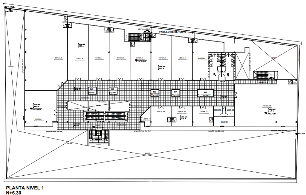
Primer nivel: 27 locales comerciales
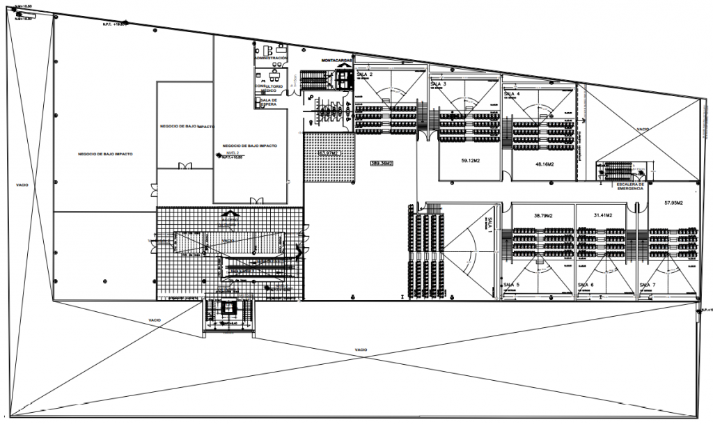
Segundo nivel: Salas de cine y cuatro restaurantes
Duración de construcción: 15 meses

Planos del proyecto

Plano arquitectónico: Sótano

Plano arquitectónico: Planta baja

Plano arquitectónico: Primer nivel

Plano arquitectónico: Segundo nivel
Etapas de construcción

Medidas de atención, prevención, mitigación y ampliación
Impactos
Medidas de Atención previstas y realizadas previas al aviso de requisito de proceso de consulta vecinal
1.Aumento de empleo para la población local por la construcción del inmueble.
Medida de ampliación: Contratación formal brindando prestaciones de ley a trabajadores de construcción durante todo el período de construcción de Paseo Tláhuac a población local.
2. Aumento de empleo durante la operación del proyecto
Medida de ampliación: Contratación formal brindando prestaciones de ley a largo plazo para empleados de locales y tiendas comerciales localizadas dentro de Paseo Tláhuac.
3. Mejoramiento urbano de las áreas colindantes al proyecto a través del acondicionamiento de espacios públicos
Medida de compensación: Construcción de jardines al exterior del proyecto con dimensiones de; Jardín 1 (3m x 74.50 m = 223.50 m2) y Jardín 2 jardín (3m x 89.40 m = 268.20 m2).
Se contempla, bajo la normativa existente, la cesión de un 10% a espacios verdes, lo cual sumarían 628 m2. Como medida de ampliación, el proyecto cedería más del 10%, es decir un total de 726.45 m2
4. Incremento de la cohesión comunitaria para familias y visitantes de la zona del proyecto.
Medida de compensación: Construcción de un Centro de Integración comunitaria PILARES (Puntos de Innovación, Libertad, Arte, Educación y Saberes) con tres aulas (1: 1.64m2; 2:11.64m2; 3: 29.29m2) dedicado al uso de la comunidad (bajo el concepto de apropiación de espacio público con administración privada) bajo la administración del proyecto.
Los PILARES es un programa del gobierno de la Ciudad de México destinado a promover la economía social a través de la enseñanza de distintos saberes y la formación de cooperativas y pequeñas empresas para generar economías en estas zonas a través de ciberescuelas, actividades físicas, deportivas y recreativas, capacitación para la instalación y manejo de sistemas de captación de agua de lluvia, huertos urbanos, calentadores solares, talleres de emprendimiento y capacitación en diversos oficios, disciplinas artísticas, funciones de danza, teatro, conciertos y exposiciones, cultura de paz, etc.
5. Mejoramiento de la accesibilidad para la adquisición de bienes, pago de servicios y alimentación en un solo lugar.
Medida de ampliación: Instalación de un supermercado de cadena nacional de gran superficie para facilitar a los habitantes y visitas del área de influencia las compras de alimentación y el acceso a servicios financieros provisto por el establecimiento como los pagos de servicios, los depósitos bancarios o el retiro de efectivo en cajeros automáticos instalados en el establecimiento.
6. Reducción de costos de traslado para compras de alimentación y acceso a servicios financieros
Medida de ampliación: Instalación de locales comerciales de gran variedad (ocio, bancos y de servicios) que permitan el pago de servicios y compras de las familias del área de influencia. Se ha calculado que se reduciría un costo promedio de traslado semanal para compras de un aproximado de 480 pesos mensuales por familia.
7. Incremento de la delincuencia ocasionada por la construcción de tapiales y muros ciegos en el predio, que pueden generar espacios obscuros en las zonas colindantes al proyecto
Medida de prevención: Colaboración con la alcaldía de Tláhuac en la construcción de espacios seguros bajo el programa de Sendero Seguro con la instalación de 4 luminarias led en la Av. San Francisco Tlaltenco y 2 luminarias led sobre la calle Cerro de Guadalupe en predios cedidos al espacio público por el proyecto.
8. Desabasto ocasionado por un alto consumo de agua diario en la operación y mantenimiento del proyecto
Medida de compensación: Instalación de un sistema alternativo de recolección de agua pluvial capaz de recolectar un aproximado de 110,000 m3 por hora, con el cual se cargarán dos dos cisternas con capacidad de 49.5 m3 y 55 m3 cada una, dando un total de 104.5m3 utilizables, que abastecerán en su totalidad el uso del agua de Paseo Tláhuac durante 7 meses del año (meses con lluvia en la zona), y cuya agua restante recolectada será dirigida al subsuelo a través de la instalación de pozos de absorción compuestos con filtros de gravas y la renovación de 144 metros de tubería de alcantarillado.
Medida de prevención: Para no afectar el consumo hídrico a los vecinos durante los meses que hay poca lluvia, se redujo, por solicitud de SACMEX la toma de agua de un tamaño de 3/4 a 1/2 que es un estándar similar a la toma de agua de casas habitación (entre 3/8 y 1/2).
9. Molestias sociales por el incremento de ruido ocasionado por la operación del proyecto Paseo Tláhuac
Medida de compensación: Realización de la construcción exclusivamente durante el horario laboral o acorde a lo permito por la normativa correspondiente como lo es el cumplimiento de niveles permisibles de emisiones sonoras y barreras de aislamiento acústico en obra.
10. Molestias sociales por el incremento de tráfico ocasionado por la operación del proyecto Paseo Tláhuac
Medida de compensación: Acondicionamiento de 2,584m2 (323 metros lineales x 8 metros de ancho) de Av. San Francisco Tlaltenco con concreto armado y remetimiento en Calle Cerro de Guadalupe para mejorare la vía de acceso a dicha calle.
11. Reducción de asistencia a mercados locales y tiendas familiares
Medida de mitigación: Generar acuerdos significativos con comerciantes locales para poder ofrecer sus productos a través de módulos permanentes dentro del área de PILARES en el proyecto.
* El Proceso de Consulta Vecinal está dispuesto para la participación de todos los habitantes y usuarios del área de influencia social, incluyendo a los Pueblos, Barrios Originarios y Comunidades Indígenas residentes en la zona.