PASEO TLÁHUAC

Información del proyecto

El proyecto Paseo Tláhuac consiste en la construcción de un centro comercial de 11,215m2 de construcción en un terreno de 6,283m2, de tres niveles sobre el nivel de banqueta y un nivel de estacionamiento bajo el nivel de banqueta, sobre el predio conocido como: Carretera a Santa Catarina Eje 10 Sur No. 60 (Ante. Av. Santa Catarina No. 26) Ms. 39 Lot. 10, colonia Pueblo San Francisco Tlaltenco, San Francisco Tlaltenco, Alcaldía Tláhuac.

Empresa promovente

Inmobiliaria y Constructora Patlali S.A de C.V

Ubicación del proyecto

Localización: Carretera a Santa Catarina Eje 10 Sur No. 60 (Ant. Av. Santa Catarina No. 26) Mz. 38 Lt. 10 colonia Pueblo San Francisco Tlaltenco, San Francisco Tlaltenco, Alcaldía Tláhuac.

Zonificación

El predio donde se ubicará el centro comercial no está afectando al área delimitada como Área Natural Protegida, como se muestra en la imagen. 

Fuente: Mapa de Áreas Naturales Protegidas, en Secretaría del Medio Ambiente de la Ciudad de México, https://sedema.cdmx.gob.mx/programas/programa/areas-naturales-protegidas

Consulta directamente aquí (Mapa de Áreas Naturales Protegidas de SEDEMA)

Uso de suelo

Uso de suelo: Habitacional Mixto

Cuenta catastral: 157_235_05

Fuente: Secretaría de Desarrollo Urbano y Vivienda (SEDUVI): http://201.144.81.106:8080/seduvi/

Enlace de Consulta aquí 

Características del proyecto

Superficie del terreno: 6,291.94 m2

Superficie construida: 11,215.00 m2

Número de niveles:  Tres niveles

Sótano:  Estacionamiento 179 cajones 

Planta baja:  Tienda departamental ancla 

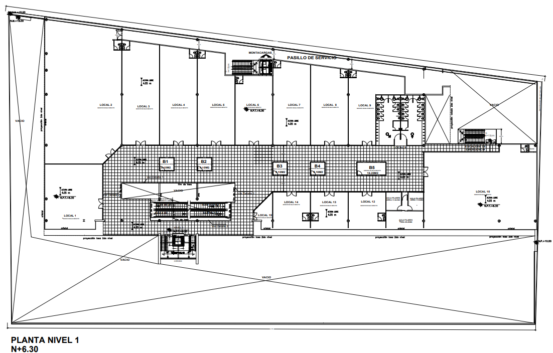
Primer nivel: 27 locales comerciales 

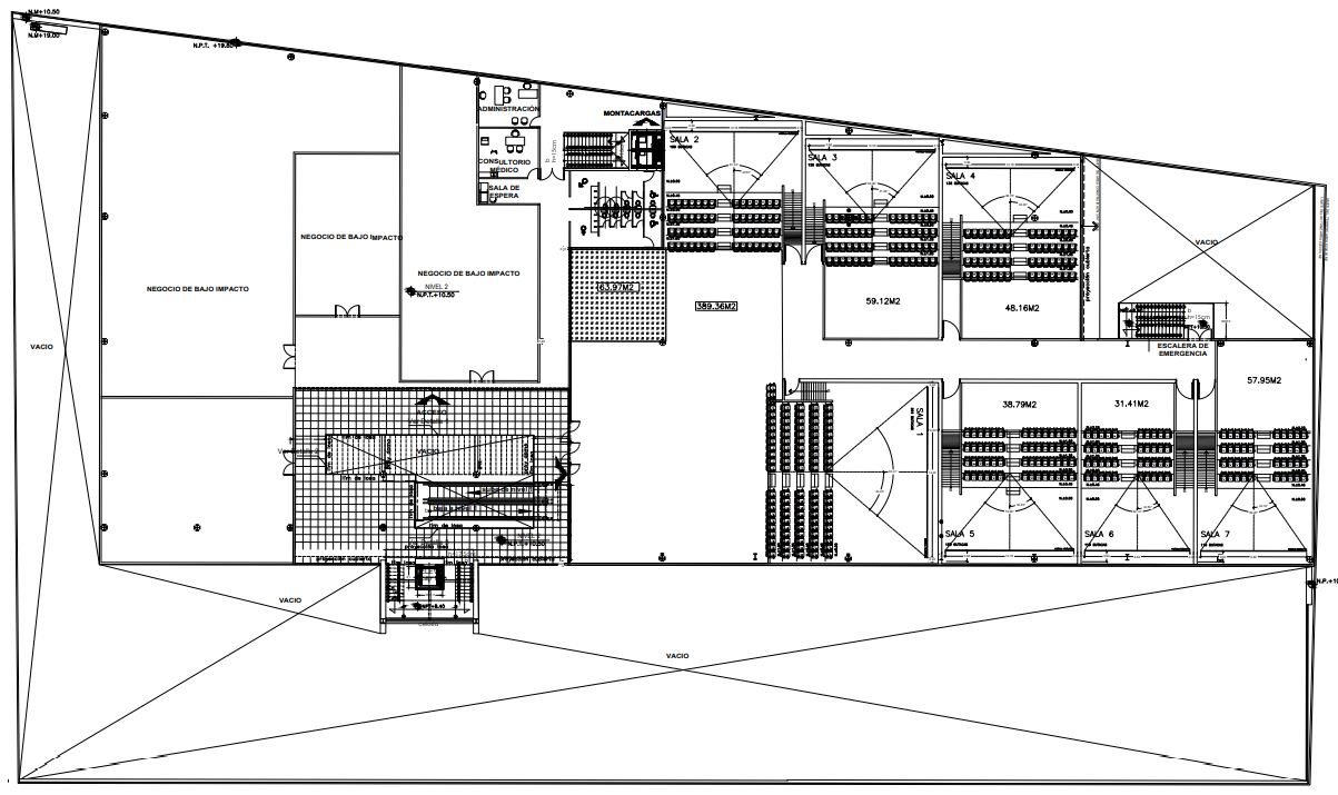
Segundo nivel: Salas de cine y 4 restaurantes

Duración de Construcción: 15 meses 

Planos del proyecto

Sótano

Planta baja

Primera planta

Segunda planta

Etapas de construcción

Conoce los impactos y medidas de atención previstos de Paseo Tláhuac